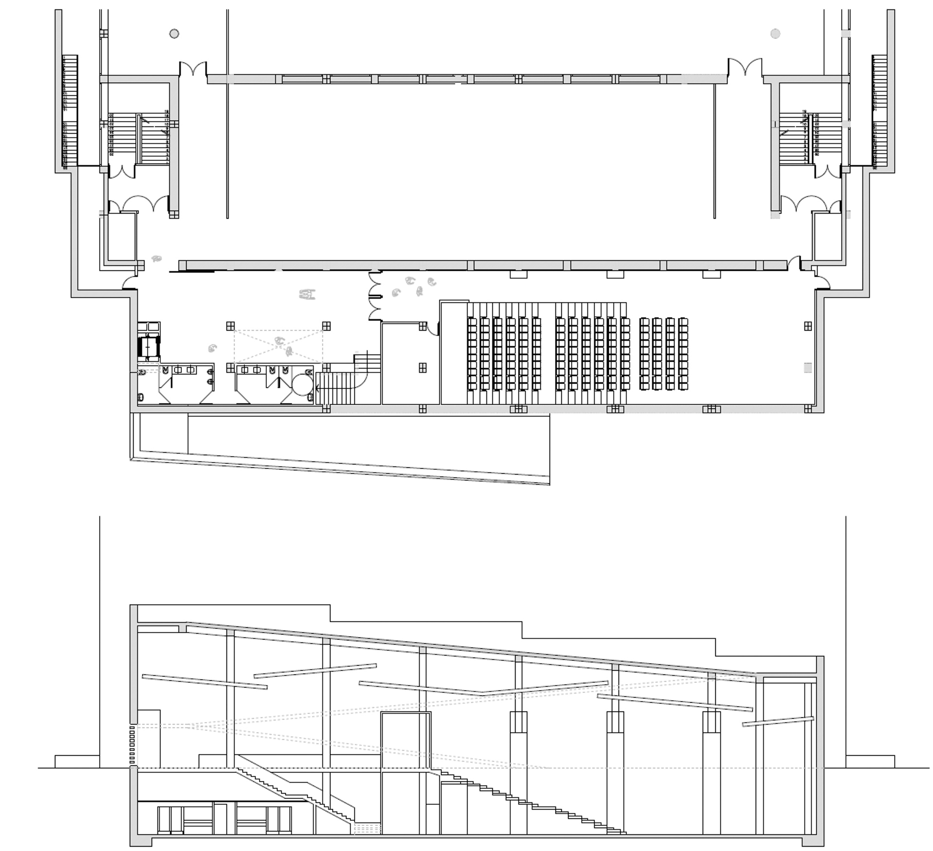
Després de diverses intervencions a l’interior de l’Auditori al llarg d’uns quants anys, la direcció del centre ens va encarregar fer unes sales d’assaig en un espai marginal de l’edifici, sota una rampa de sortida d’emergència de l’ESMUC (Escola Superior de Música de Catalunya), on vam veure la possibilitat de construir-hi una nova sala per a concerts de petit format. L’avantprojecte és respectuós amb l’edifici existent i proposa un espai interior diàfan, polivalent i lluminós. Finalment, el projecte el van desenvolupar els arquitectes Rafael Moneo i Lucho Marcial.
Barcelona, 2007
Rafael Moneo
1.200 m2
Consorci de L’Auditori i L’Orquestra
JFG Consultors