bAR Arquitectura i Disseny. Serveis integrals d’arquitectura, interiorismei disseny industrial.

Maresme Senior Coliving

La Genera 8
La Genera 7
La Genera 20
La Genera 21
La Genera 22
La Genera 1
La Genera 5
La Genera 6

Complex d’habitatges i serveis per a gent gran

Aquest projecte neix amb l’objectiu de garantir el màxim benestar i confort dels seus residents. Per a això, s’han dissenyat espais còmodes i plens de llum, que es connecten tant amb l’exterior com amb les zones comunes, promovent l’activitat, individual o en grup, i fomentant les relacions socials.

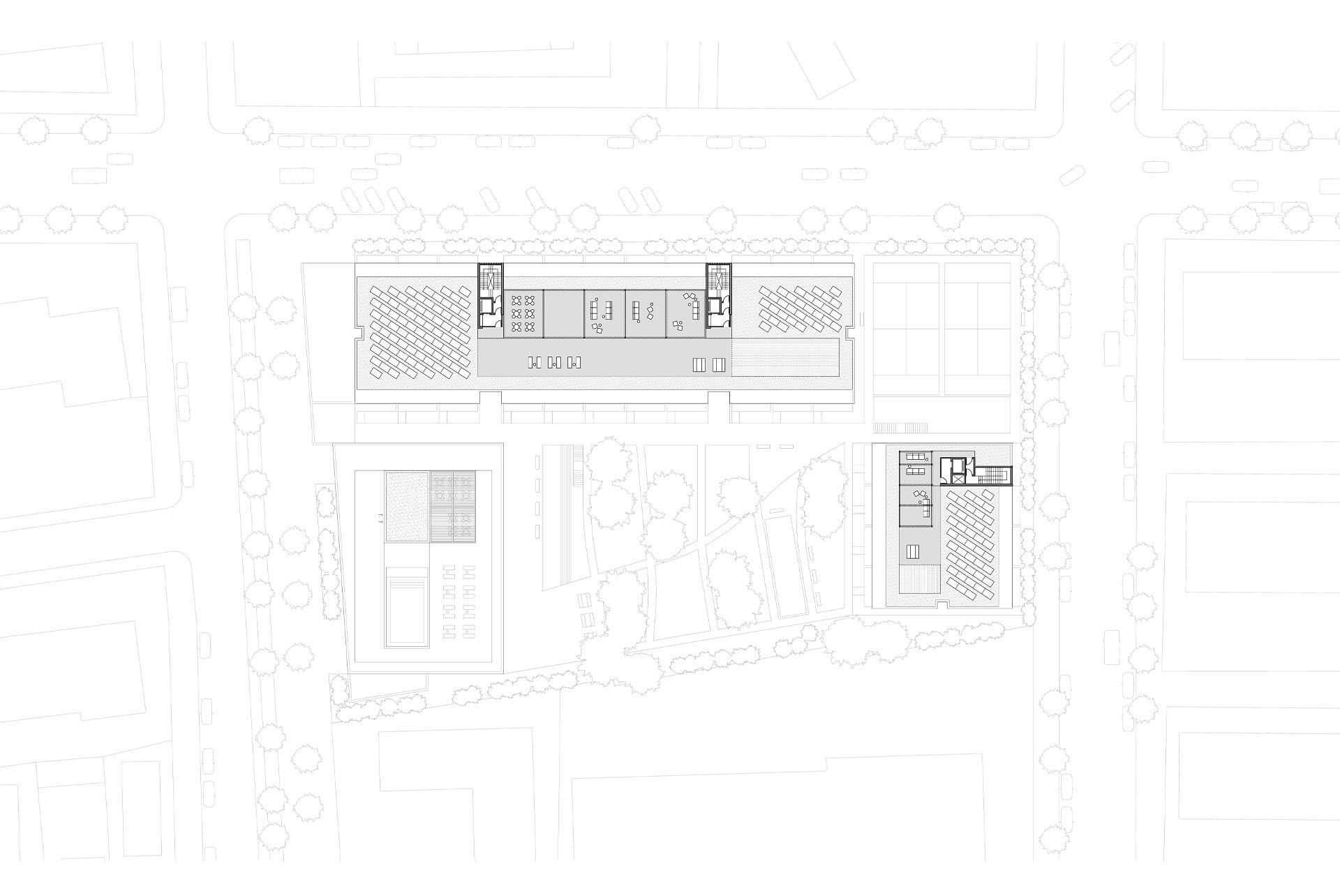
La parcel·la, amb façana a tres carrers, organitza els edificis i les instal·lacions esportives als límits per alliberar un gran espai central, que serà verd i es convertirà en el cor del projecte. Les zones comunes i els equipaments estaran directament relacionats amb aquest espai.

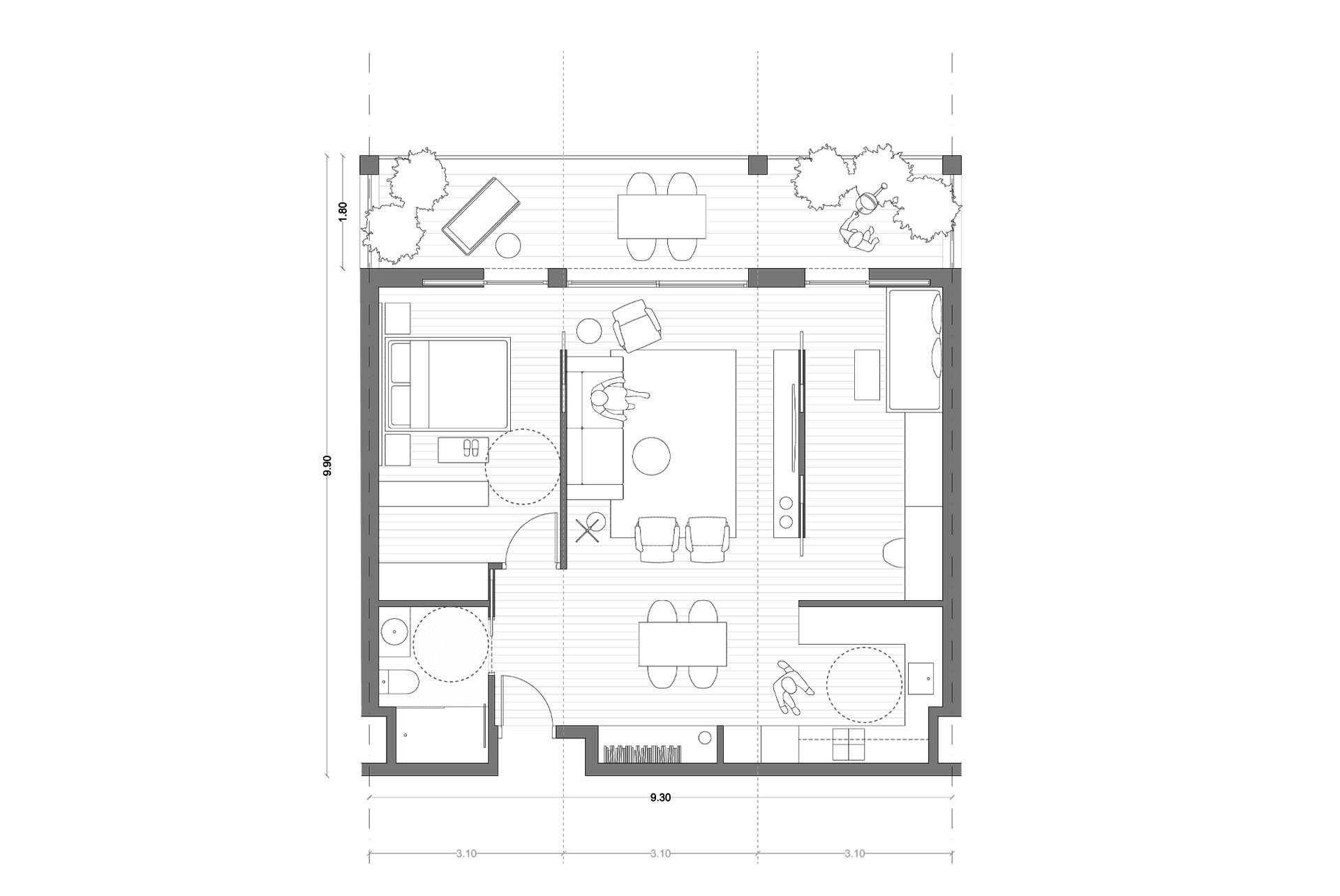
Existeixen dues tipologies d’habitatges, d’una o dues habitacions, totes amb una àmplia terrassa privada. La distribució interior està pensada per a la comoditat, amb espais amplis i flexibles que ofereixen una sensació d’obertura alhora que permeten compartimentar-se quan es busca privacitat.

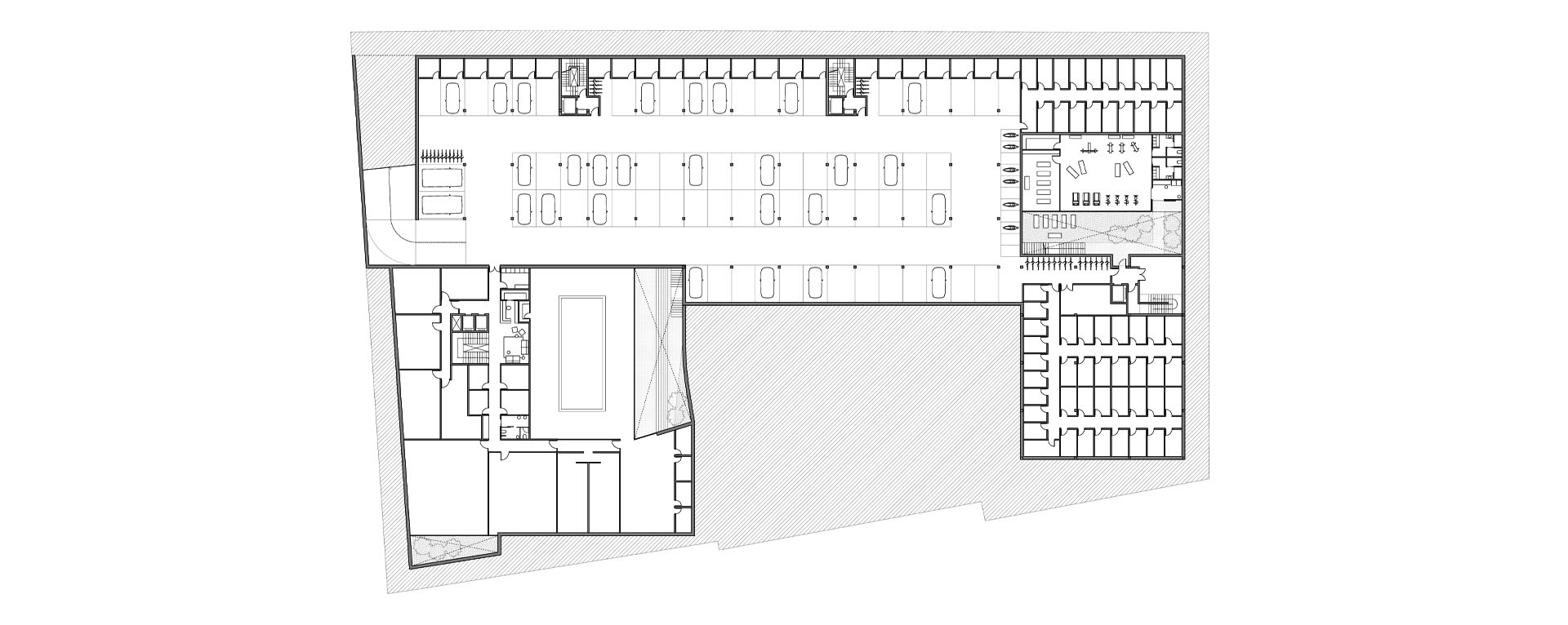
La planta soterrani acollirà el pàrquing, els trasters, els equipaments i les sales tècniques. Les cobertes seran en part tècniques i en part transitables, amb zones comunes com horts i espais de relax amb vistes al mar.

Situació

Maresme, 2023-en procés

Sup.

12.000 m2

Client

Privat

En col·laboració amb

CTS Arquitectes