bAR Arquitectura i Disseny. Serveis integrals d’arquitectura, interiorismei disseny industrial.

Casa a Sarrià

Casa Sarrià 2
Casa Sarrià 1
Casa Sarrià 3
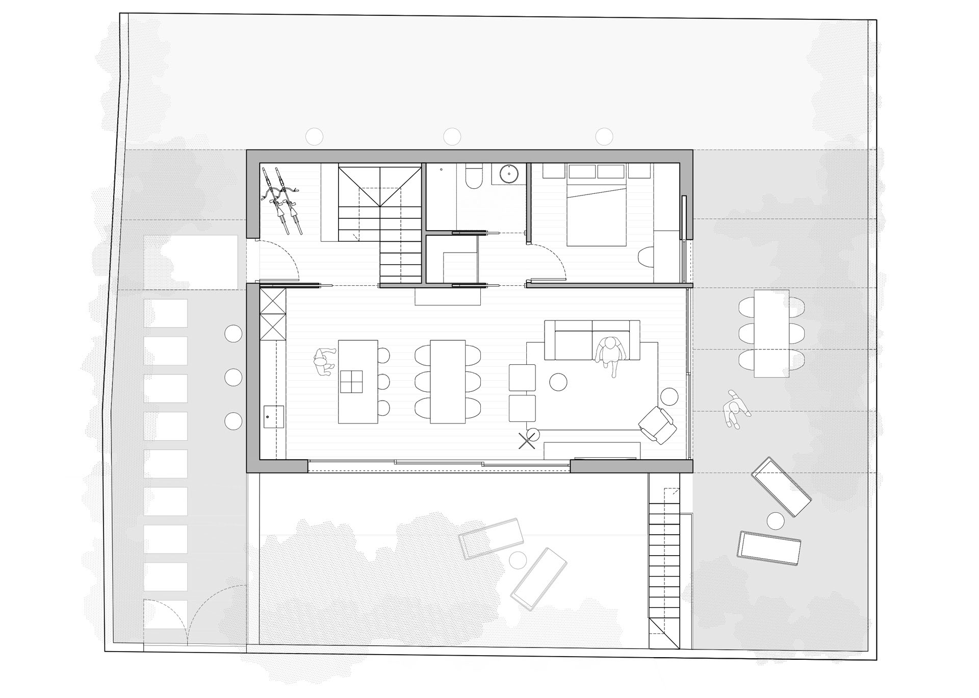
Casa Sarrià plànol 1
Casa Sarrià plànol 2
Casa Sarrià plànol 3
Casa Sarrià plànol 4

Habitatge unifamiliar aïllat

La idea fonamental de l’habitatge sorgeix com a resposta a les restriccions urbanístiques i veïnals d’aquesta parcel·la, en la qual, sobre rasant, es pot construir una sola planta de superfície 75m2 i altura màxima 3m. Fruit d’aquestes limitacions sorgeix el projecte: una casa semi-entererrada que creix sota rasant.

La casa s’obre cap a l’orientació sud mentre es tanca i protegeix de les vistes dels veïns en la direcció oposada. Posa en valor els espais exteriors i la vegetació com a vehicle per al contacte amb la natura tot i trobar-se al centre de la ciutat.

El programa es desenvolupa en tres plantes: sobre rasant s’ubica l’accés, els espais comuns de sala d’estar, menjador, cuina, i una zona d’estudi, tots volcats cap al jardí. En planta -1 es troben les tres habitacions i dos banys, una d’elles en suite amb vestidor. També s’hi troba la bugaderia. Les habitacions tenen sortida a un pati, que, al quedar sota el nivell de rasant, ofereix especial intimitat. Finalment, en planta -2 existeix una sala polivalent que es pot destinar a cinema, taller, gimnàs… segons les necessitats de qui l’habita.

Situació

Barcelona, 2024 - en procés

Sup.

225 m2

Client

Privat