bAR Arquitectura i Disseny. Serveis integrals d’arquitectura, interiorismei disseny industrial.

Complex residencial a la Costa Brava

IMG 1.red
IMG 2.red
IMG 3.red
IMG 4-pers.red
La Fosca 1.red
La Fosca 2.red
La Fosca 3.red
La Fosca 4.red
La Fosca 5.red
La Fosca 6.red

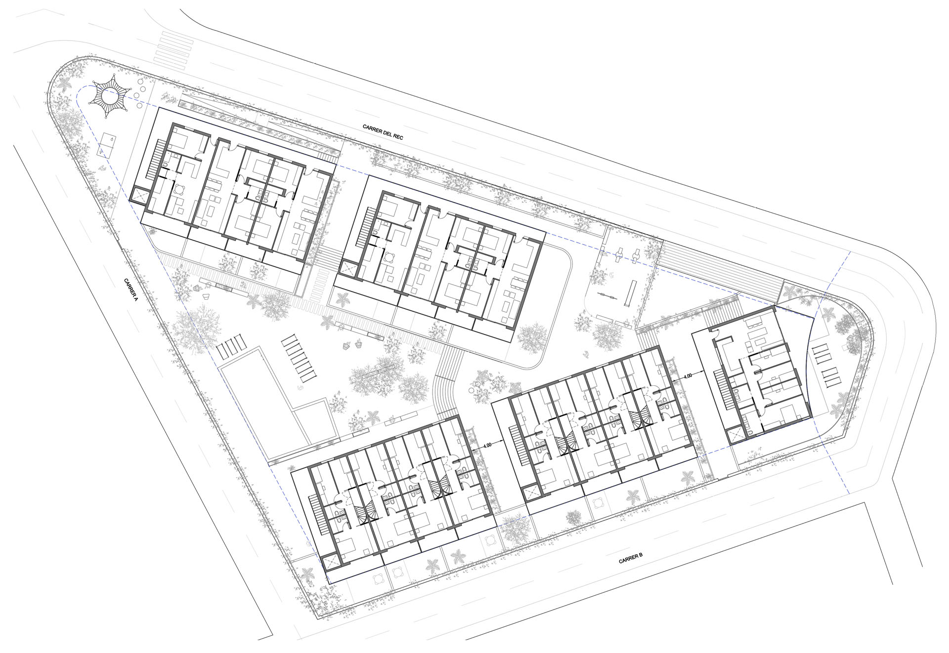
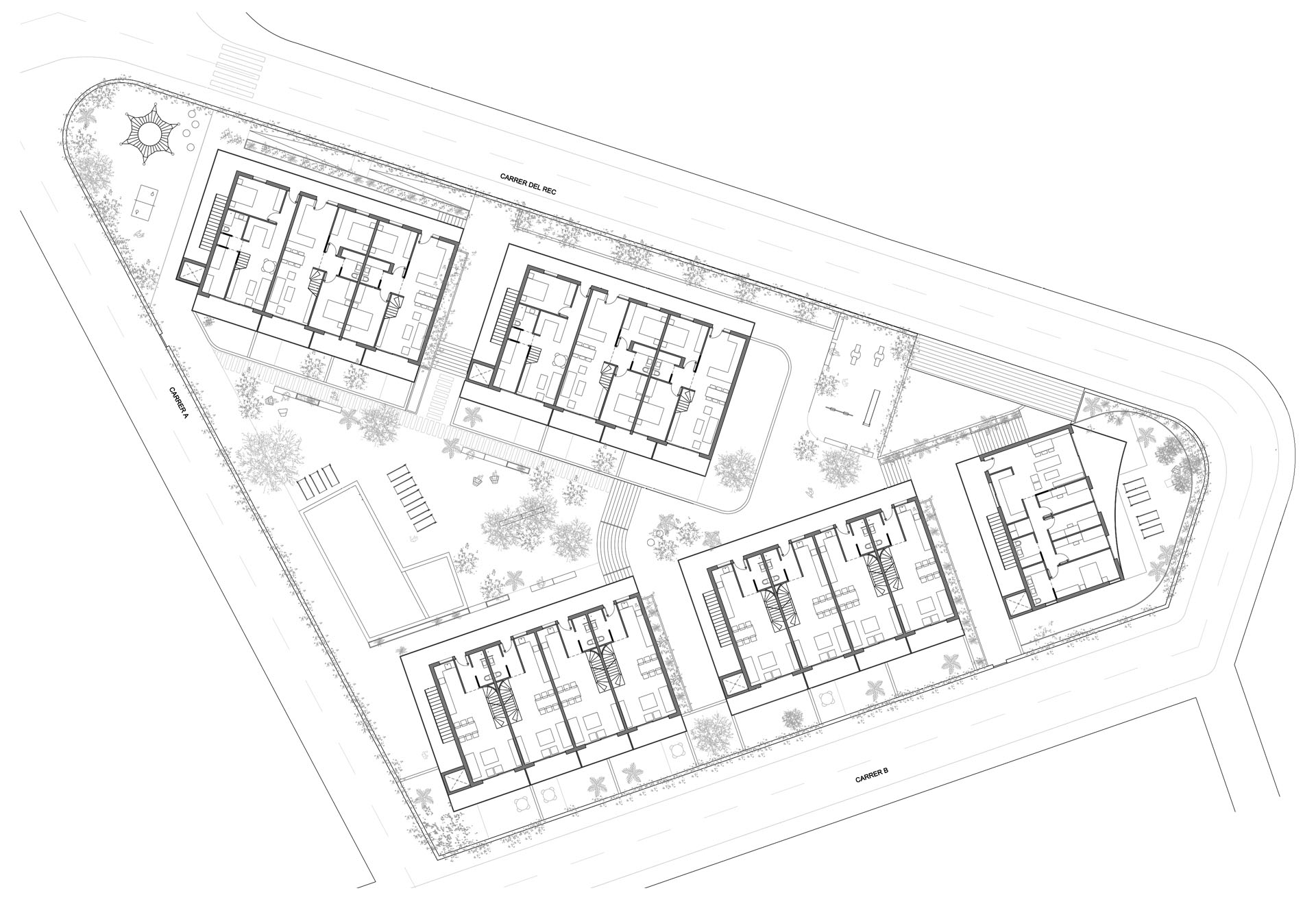
Complex residencial de 35+16 habitatges i espais comunitaris

El conjunt residencial es troba a Costa Brava catalana. El solar és de forma triangular i està situat pràcticament a primera linia de mar. L’estricta normativa de la zona, i en especial la que afecta al litoral, obliga a una arquitectura fragmentada en edificis petits de planta baixa i dos plantes pis. Això porta a configurar una estructura de cinc edificis endreçats en dues línies en V generant un espai interior d’ús comunitari, amb piscina i jardí, que imaginem principal i molt concorregut.  La proposta pretén trobar l’equilibri entre paisatge, sostenibilitat, l’ús residencial i l’entorn immediat.

Situació

L'Empordà, Girona 2020

Sup.

5.200 m2

Client

Privat

En col·laboració amb

Toni Sala, CTS Arquitectes