bAR Arquitectura i Disseny. Serveis integrals d’arquitectura, interiorismei disseny industrial.

RSP16 Business Center

RSP16 2 reduit
bAR_rsp_map_01
bAR_rsp_map_02
bAR_rsp_map_03
bAR_rsp_map_04
bAR_rsp_map_05
bAR_rsp_map_06

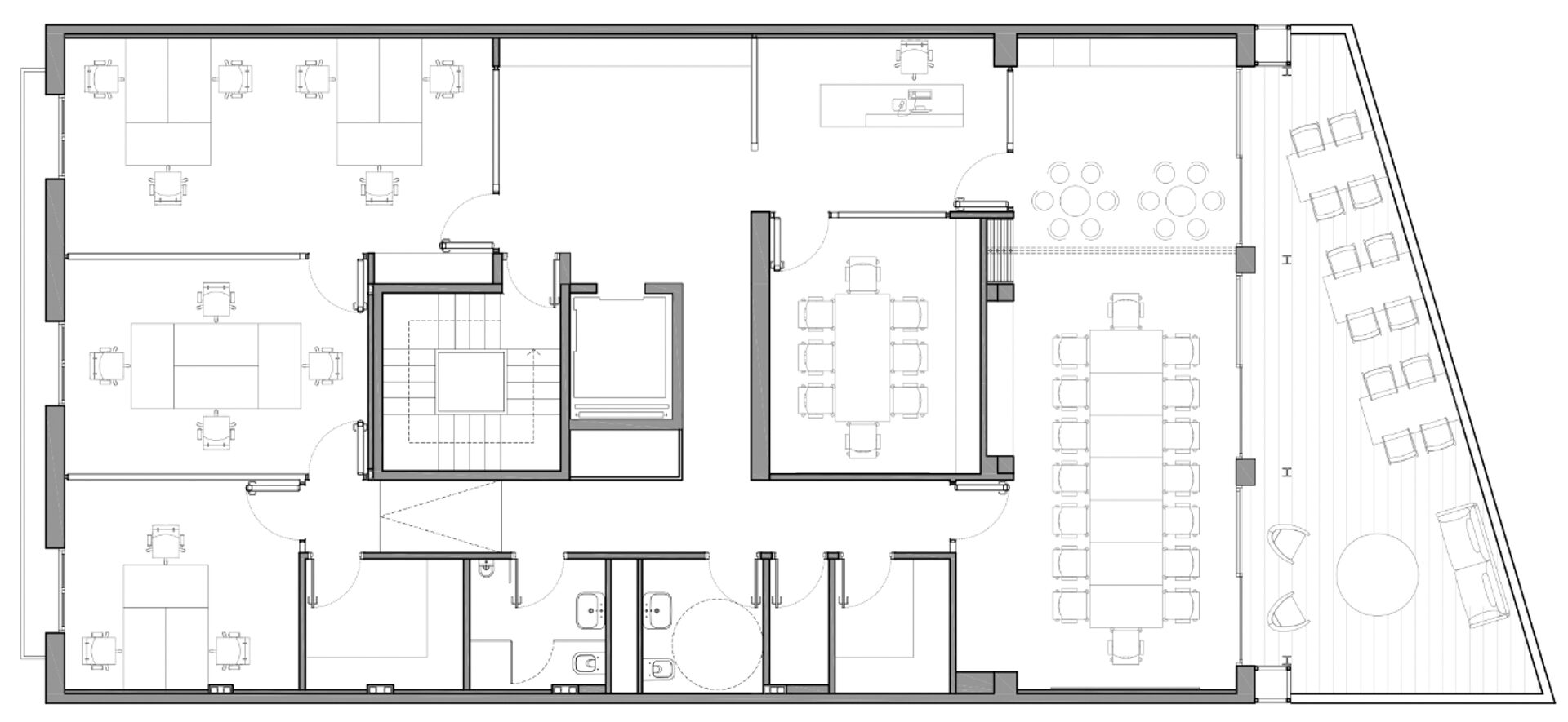
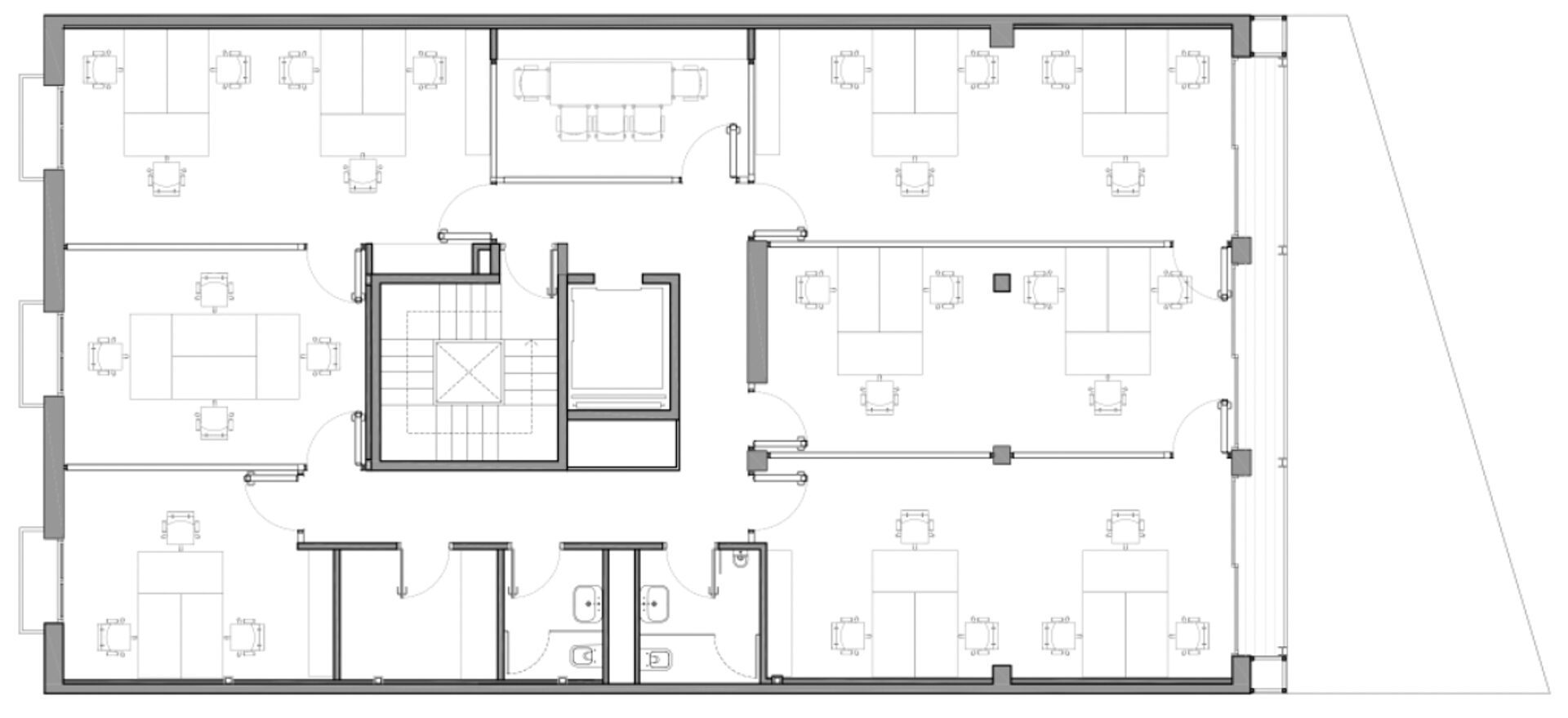
Business Center a Ronda Sant Pere

Aquest edifici de principis del S.XX es reforma integralment per a convertir-lo en un Centre de Negocis. Mentre que la façana a carrer es manté intacta, a la façana interior se li afegeix una galeria-balconera a base d’estructures metàl·liques lleugeres. Aquest gest evoca a les clàssiques galeries de la ciutat, a l’hora que millora la qualitat espaial de les oficines, aportant espais intermitjos a l’àmbit de treball.

Situació

Barcelona, 2016-2018

Sup.

1.800 m2

Client

Maximus Venture Investment

Estructura

JFG Consultors

Enginyeria

Pilmont Vitan