bAR Arquitectura i Disseny. Serveis integrals d’arquitectura, interiorismei disseny industrial.

Edifici d’habitatges a Fontanella

bAR_fontanella_02
bAR_fontanella_01
bAR_fontanella_maps_f

Edifici de 15 habitatges, local i aparcament

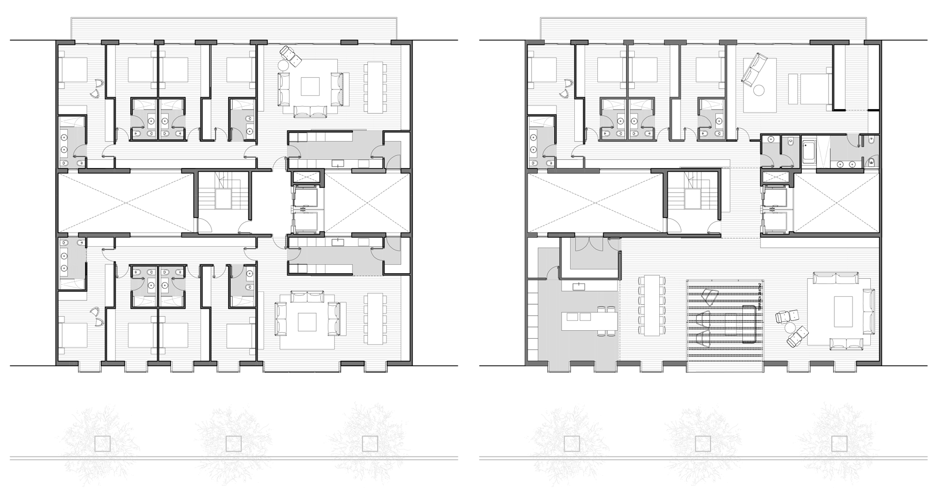
Al número 9 del carrer Fontanella, a tocar de la Plaça de Catalunya de Barcelona, es projecta un nou edifici de d’habitatges d’alt standing, un local i aparcaments. Consta de planta baixa, altell, cinc plantes pis i dos soterranis per aparcament. El projecte es planteja com un doble bloc amb un pati central i el nucli de comunicacions central. La planta cinquena és un sol habitatge de grans dimensions. La resta de plantes es distribueixen amb dos habitatges per planta.

Situació

Barcelona, 2016

Sup.

6.600 m2

Client

Privat