bAR Arquitectura i Disseny. Serveis integrals d’arquitectura, interiorismei disseny industrial.

ESCAC

bAR_escac_01
bAR_escac_02
bAR_escac_03
bAR_escac_map_01

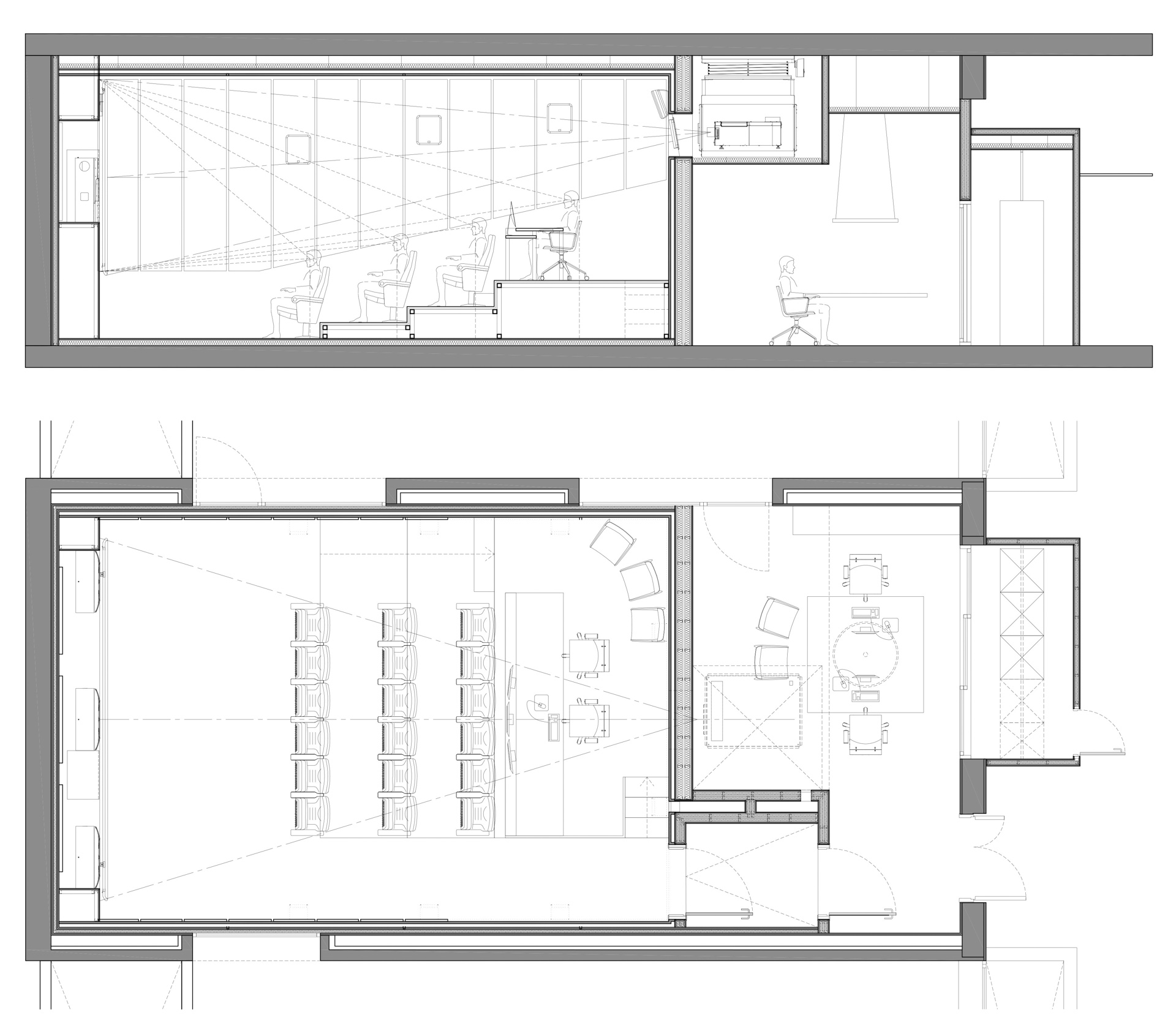
Sala de postproducció de color

L’ESCAC és probablement l’escola de cinema i audiovisuals més prestigiosa de Catalunya. La nostra intervenció ha consistit en la transformació d’una aula d’ús convencional en una aula-sala de formació de postproducció de color de nivell professional. El nostre compromís amb l’escola ha sigut màxim per aconseguir, al menor cost possible, una instal·lació de referència en el sector.

Situació

Terrassa, 2019

Sup.

120 m2

Client

ESCAC

Instal·lacions audiovisuals

Cinema Next

Col·laborador

Jordi Bransuela