bAR Arquitectura i Disseny. Serveis integrals d’arquitectura, interiorismei disseny industrial.

Dues cases a Miralpeix, Sitges

Miralpeix render 1
Miralpeix render 2
Miralpeix render 3
Miralpeix render 4
Miralpeix render int 1
Miralpeix render int 2
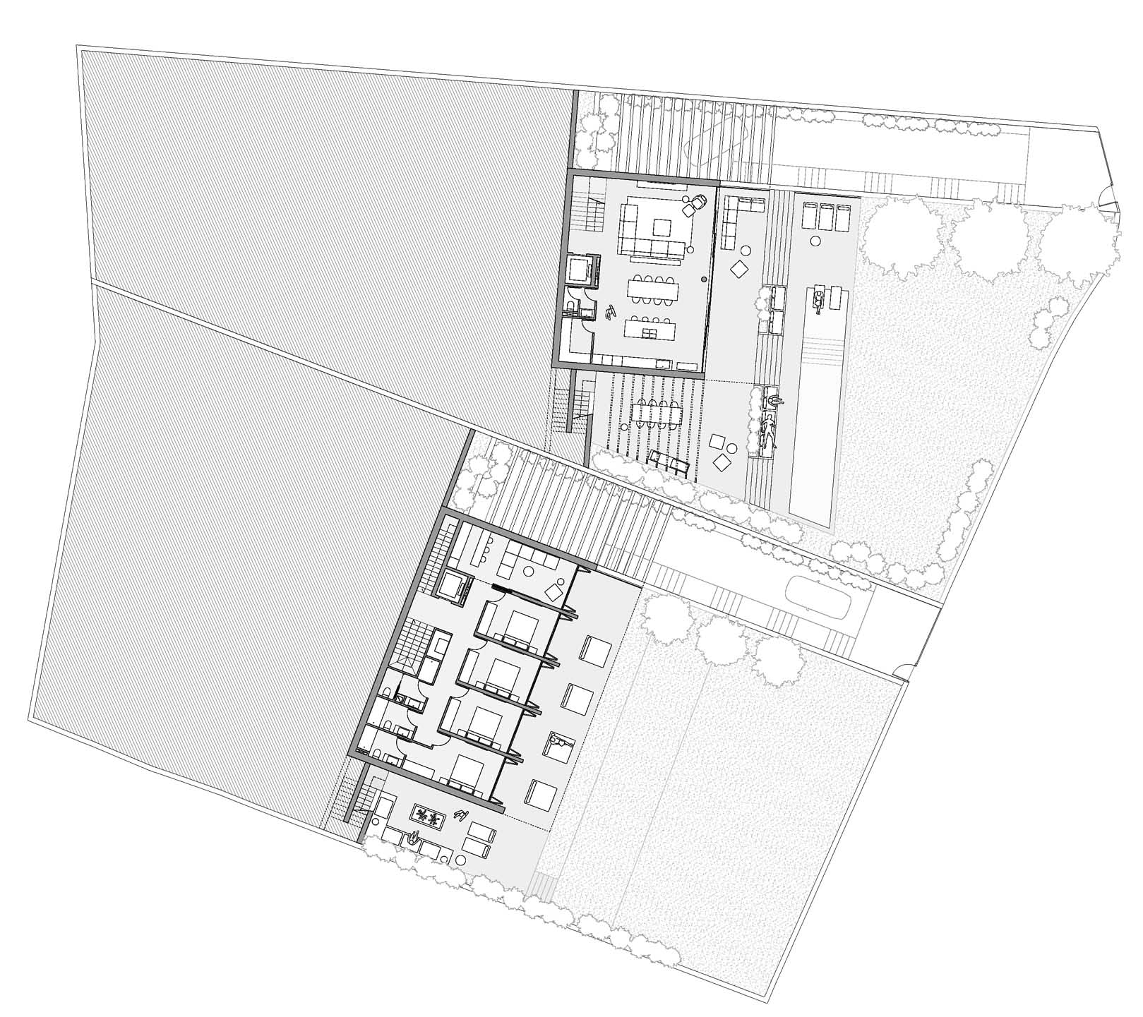
Miralpeix planols 1
Miralpeix planols 2
Miralpeix planols 3
Miralpeix planols 4
Miralpeix planols 5
Miralpeix planols 6

Dos habitatges unifamiliars aïllats

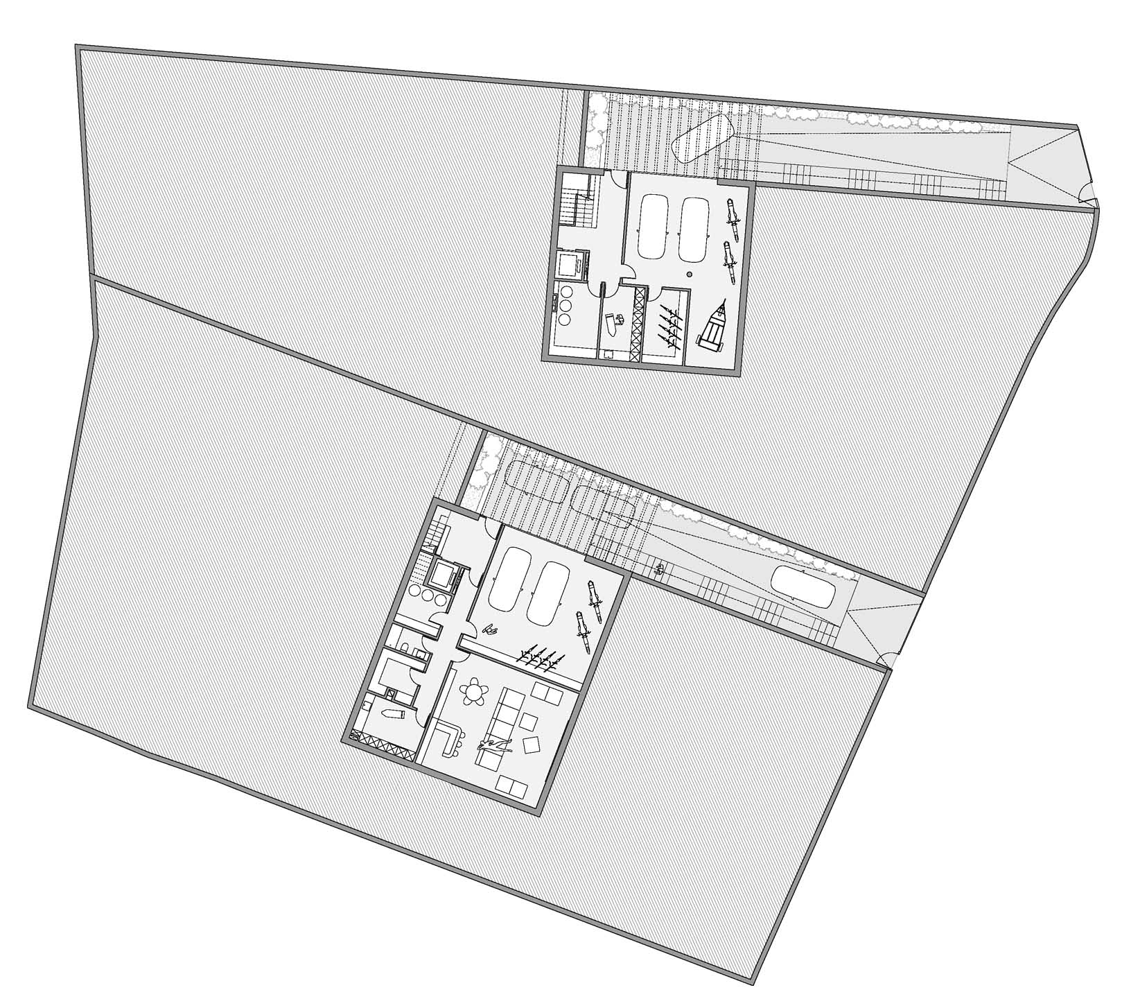
Conjunt de dues cases en un terreny amb pendent a Sitges. Totes dues concentren els accessos a la part nord del terreny per independitzar-se entre si i alliberar el jardí amb la millor orientació. Les cases estan orientades cap a la vista, amb una lleugera diferència en l’orientació per assegurar la privacitat entre elles.

Aquest projecte s’inspira en la idea de dues cases de la mateixa família, però no idèntiques. Es tracta de dues geometries molt senzilles, que juntes formen un conjunt amb entitat pròpia.

La distribució per plantes és la següent: la planta soterrani es destina a aparcament, espais tècnics i emmagatzematge. Una de les plantes es destina a espai de dia, amb espais amplis i oberts que es bolquen cap a la piscina, les vistes i les terrasses exteriors. En una de les cases, també inclou la suite principal. La segona planta es destina principalment a la zona de nit. Aquestes dues plantes es decalen a cada casa per promoure la privacitat dels espais de lleure.

Es posa en valor tot l’entorn de les cases i els espais exteriors colindants, ja que d’aquesta manera s’aconsegueix una extensió dels espais interiors i un major aprofitament de les parcel·les per al gaudi dels usuaris.

Situació

Sitges, 2024

Sup.

950 m2

Client

Privat