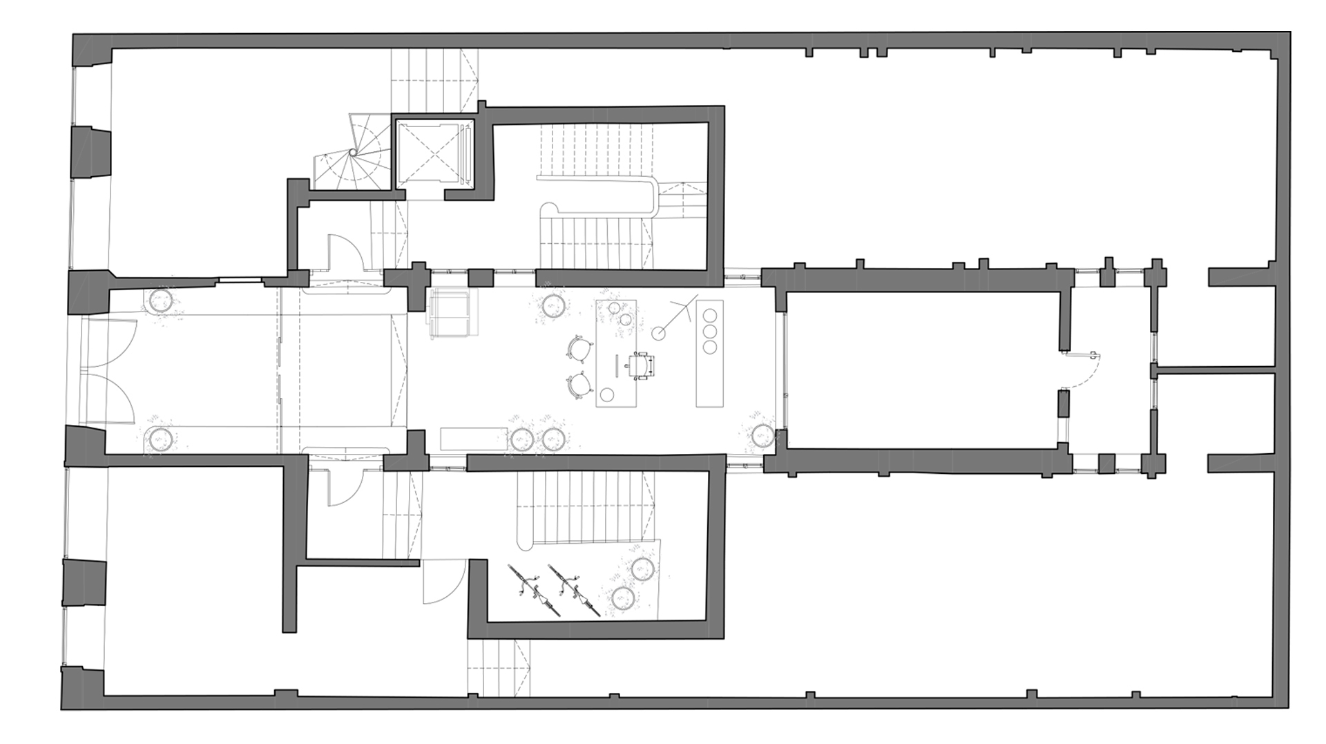
La reforma interior d’aquest edifici del S.XVIII al barri de Recoletos de Madrid, ha consistit en retornar i dotar d’estil i de qualitat als tretze habitatges de l’immoble. L’interiorisme proposa uns espais acollidors, amb moblament contemporani combinat amb elements més clàssics.
Madrid, 2018-2020
1.600 m2
Naropa Residencial / Aspasios