bAR Arquitectura i Disseny. Serveis integrals d’arquitectura, interiorismei disseny industrial.

Casa a Can Girona II, Sitges

B515 – 3D AP01 3 red
B515 – 3D AP01 1 red
B515 – 3D AP01 2 red
B515 – 0
B515 – 1
B515 – 2
B515 – 3
B515 – 4
B515 – secc

Un habitatge unifamiliar aïllat amb jardí

La casa s’ubica en un terreny amb fort pendent a Sitges, amb doble accés des de la part superior i inferior de la parcel·la. Es col·loca a la part alta del solar per maximitzar les vistes al mar i, alhora, alliberar el jardí frontal, orientat òptimament per a l’ús exterior.

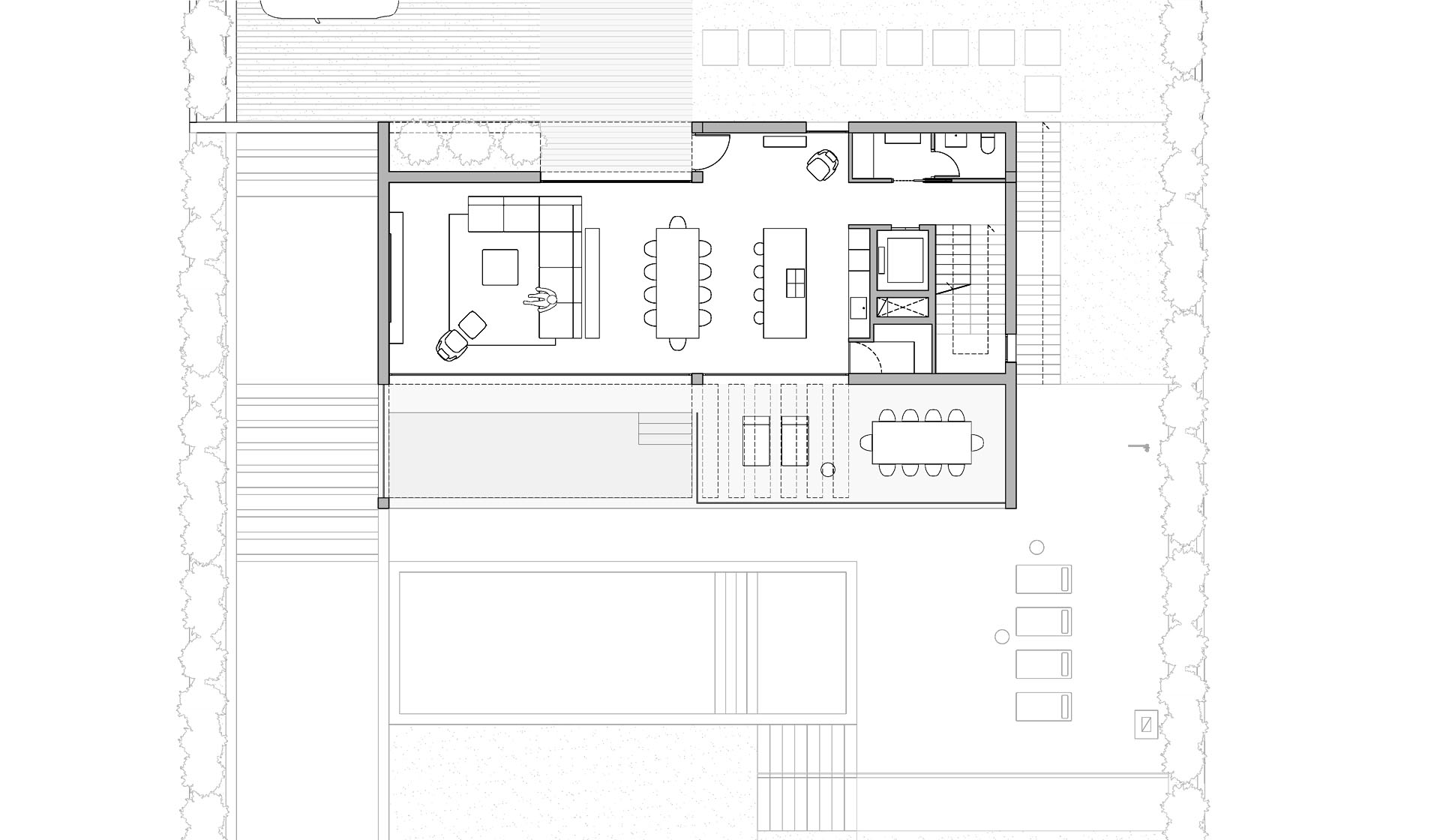
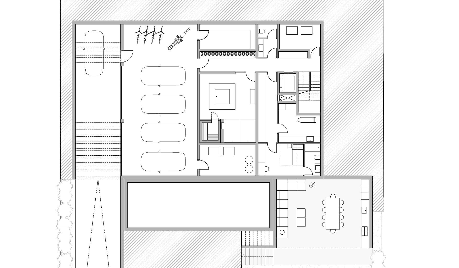
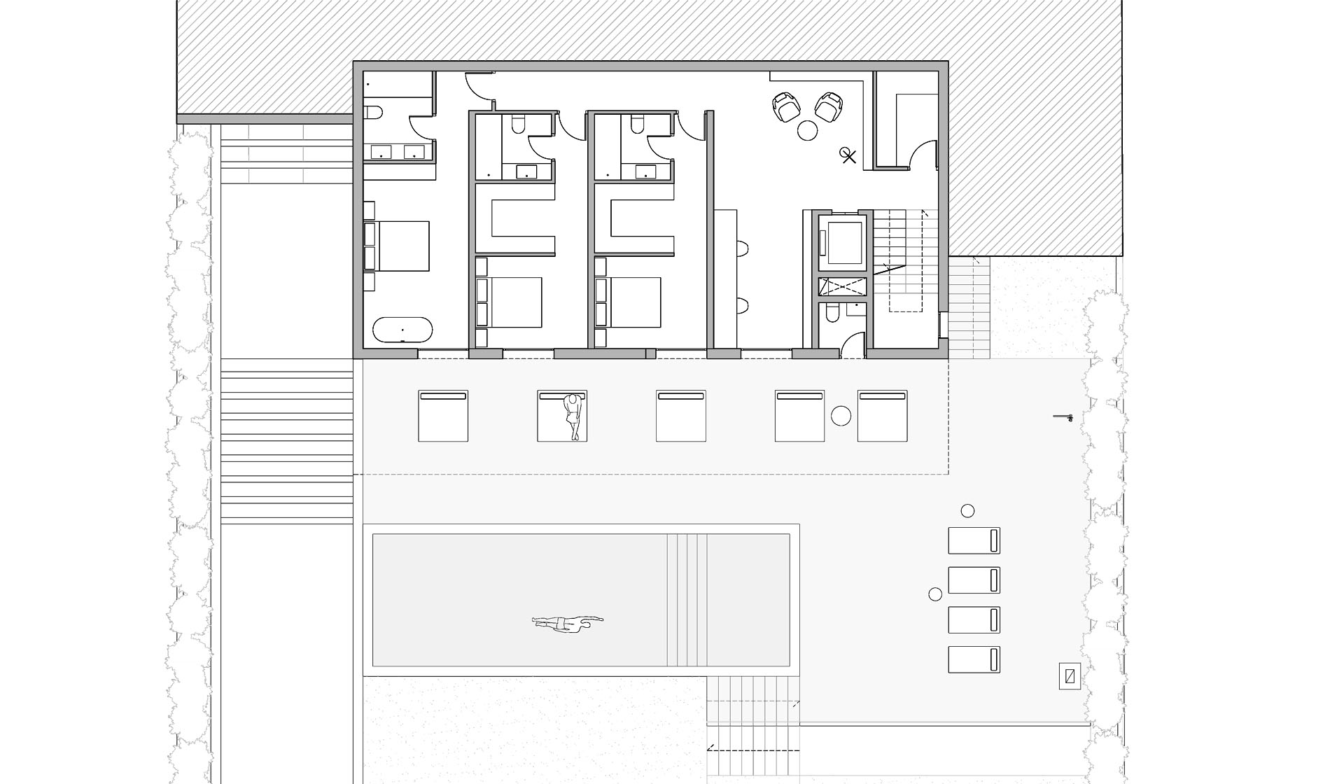
El programa es distribueix en quatre nivells. La planta soterrani es destina a l’aparcament, els espais tècnics i una zona de spa. A la planta baixa s’hi troben tres habitacions i un estudi, tots amb accés directe al jardí frontal, on hi ha una piscina i un menjador d’estiu integrat amb el relleu natural del terreny. A la primera planta es desenvolupen els espais de dia, amb una sala d’estar oberta que connecta visualment el jardí del darrere amb les vistes al mar, i una terrassa amb piscina infinity que completa aquest nivell. Finalment, a la planta àtic s’ubica la suite principal, amb sortida a una gran terrassa lateral.

Els espais exteriors tenen un paper protagonista i es dissenyen com una extensió natural de l’interior. El jardí es tracta en forma de terrasses per adaptar-se a la topografia i generar el màxim d’espai útil a l’aire lliure.

En resum, el projecte busca potenciar al màxim les qualitats del lloc, aprofitant una ubicació privilegiada i integrant arquitectura, paisatge i llum mediterrània.

 

Situació

Sitges, Barcelona, 2025

Sup.

590 m2

Client

Privat